My properties red circle favorite
avatar support
9-18h - Mon. to Sat. +33 (0)5 53 60 84 88 International
avatar support
click for phone number
9-18h - Mon. to Sat.
+33 (0)5 53 60 84 88
My properties red circle favorite Search icon close icon navigation

Apartment in Annecy, Haute-Savoie, French Alps (Auvergne-Rhône-Alpes)

icon flag France favorite white bouton share

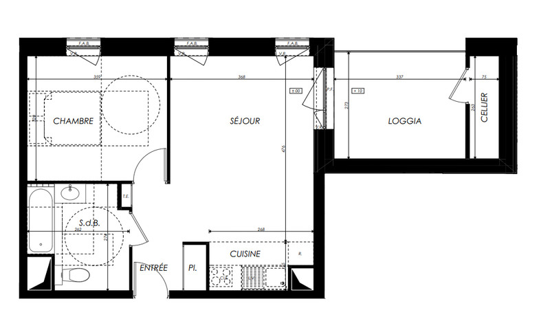
2 rooms - 1 Bed - 1 Bath | Floor 42m² | Ext 9m²

€252,000 - £219,316**

2 rooms - 1 Bed - 1 Bath | Floor 42m² | Ext 9m²

€252,000 - £219,316**

icon flag France favorite white

Off plan one bedroom apartment for sale in Seynod, Annecy with loggia and storage cellar, great location

This brand new one bedroom apartment has a large open plan living area with access out onto a loggia. Built in storage in the apartment and a further storage cellar are included.

The 4 elegant and stylish buildings which make up this development are surrounded by greenery and designed to make the most of the views and sunshine with each apartment having a terrace or balcony open to the sky. This staged design offers privacy enabling you to enjoy the outdoors without being overlooked.

Apartments range in size from studio to 3 bedrooms and if purchased as an investment offer the chance of reduced VAT.

Set in Seynod, on the outskirts of Annecy, this area is being fully regenerated and making the most of the strong local economic growth. Within easy reach you have the A41 Motorway to Geneva/ Chambery / Aix-les-Bains; the TGV station; local buses and cycle paths. There are local schools and colleges as well as supermarkets and local shops.

The development offers secure access and bike storage, many apartments come with private parking places. Being new, they comply with all the latest sound and thermic insulation requirements and 10 year guarantees ensure that you will not have any work to do!

Annecy is famed for its beautiful lake and surrounding mountains, the gateway to multiple ski resorts and the perfect place to enjoy the surrounding countryside and national parks.

Transport links:
Geneva International Airport - 45km (30 minutes)
The A41 Motorway - 8 minutes drive
Local bus stop 190m for the centre of Annecy
Cycle paths a priority through out the town - 10 minutes bike ride to the lake
------
Information about risks to which this property is exposed is available on the Géorisques website : https://www.georisques.gouv.fr

[Read the complete description]

Ref. : A40115MAA74 | NEW

Your request has been sent

icon brochureBrochure
icon mapMap icon brochureBrochure

Hi,
I'm Kylie,
your local contact for this Property

Kylie Poirier

Independent Sales Agent
SIREN: 924264401

AGENT'S HIGHLIGHTS

  • Close to motorway and public transport links
  • Easy access to the lake and cycle paths
  • Stylish modern design
  • Newbuild with 10 year guarantees
  • Residence with secure access and bike storage
French property for sale in Annecy, Haute-Savoie - €252,000 - photo 0
French property for sale in Annecy, Haute-Savoie - €252,000 - photo 1
French property for sale in Annecy, Haute-Savoie - €252,000 - photo 2
French property for sale in Annecy, Haute-Savoie - €252,000 - photo 3
French property for sale in Annecy, Haute-Savoie - €252,000 - photo 4

AGENT'S HIGHLIGHTS

LOCATION

  • Town property
  • 50km or less to airport
  • 0-2KM to amenities

icon mapMap

Features, Location, Financial informations and medias

Ref. : A40115MAA74 | NEW
  • Apartment
  • icon square meter 42m2
  • icon garden 9m2
  • icon room 2 rooms - 1 bed - 1 bath

* m² for information only

icon conditionNew Build

Energy Efficiency Rating (DPE)

DPE not required.


icon panoramic viewPANORAMIC VIEW

Energy Efficiency Rating (DPE)

DPE not required.

LOCATION

  • Town property
  • 50km or less to airport
  • 0-2KM to amenities

icon mapMap

FINANCIAL INFORMATION

Price

€252,000
£219,316**

Fees

paid by Vendor

** The currency conversion is for convenience of reference only.

FINANCIAL INFORMATION

Price

€252,000 - £219,316**

Fees paid by

vendor

** The currency conversion is for convenience of reference only

Energy efficiency ratings (DPE + GES)

DPE not required

Based on Article R.134-1 of the Building and Housing Code, DPE not required in the following cases:

  • buildings without a fixed heating system (and without a cooling system for the premises);
  • independent buildings with a floor area less than 50 m²;
  • buildings for agricultural, artisanal, or industrial use, other than residential premises;
  • buildings used as places of worship;
  • classified historical monuments or monuments listed in the inventory under the heritage code;
  • residential buildings or parts of residential buildings intended to be used for less than 4 months per year;
  • temporary constructions intended for a period of use equal to or less than 2 years.

Contact
Any questions about this property ?

Your request has been sent

Contact us
icon top scroll